Oxbrokers - Купи директно от инвеститор +359 89 999 1166
Жилищна сграда Dalia
Към проекти
Жилищна сграда

Dalia

Модерна бутикова сграда в кв.Орландовци, гр.София. Разполага само с 13 функционално разпределени апартамента, простиращи се на 4 етажа. Намира се в една от най-хубавите части на квартала като в близост има магазини, спирки, голям парк и детска градина. Въпреки достъпните цени за двустайни и тристайни апартаменти, не е допуснат компромис с качеството.

Обща площ 980
Апартаменти 13
Паркоместа 13
Dalia

Изберете етаж и разгледайте апартаментите

Етажи
1 2 3 4 5

За повече информация кликнете върху имота

Етаж Тип Под тип ЧП ОЧ Изба ОП Цена € Статус
Ап-1
1
Апартамент
Тристаен
42,74 м2
7,26 м2
2 м2
52,00 м2
-
Продаден
Ап-2
1
Апартамент
Двустаен
-
-
-
-
-
Продаден
Ап-3
1
Апартамент
Двустаен
-
-
-
-
-
Продаден
Ап-4
1
Апартамент
Тристаен
-
-
-
-
-
Продаден
Ап-5
2
Апартамент
Многостаен
111,68 м2
19,32 м2
2 м2
133,00 м2
175 000
Свободен
Ап-6
2
Апартамент
Двустаен
-
-
-
-
-
Продаден
Ап-7
2
Апартамент
Тристаен
-
-
-
-
-
Продаден
Ап-8
3
Апартамент
Многостаен
-
-
-
-
-
Продаден
Ап-9
3
Апартамент
Двустаен
-
-
-
-
-
Продаден
Ап-10
3
Апартамент
Тристаен
61,65 м2
11,35 м2
2 м2
75,00 м2
-
Продаден
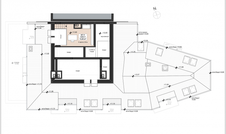
Ап-11
4
Апартамент
Мезонет
120,03 м2
21,97 м2
2 м2
144,00 м2
189 000
Свободен
Ап-12
4
Апартамент
Двустаен
33,88 м2
6,12 м2
2 м2
42,00 м2
-
Продаден
Ап-13
4
Апартамент
Двустаен
50,16 м2
8,84 м2
2 м2
61,00 м2
-
Продаден
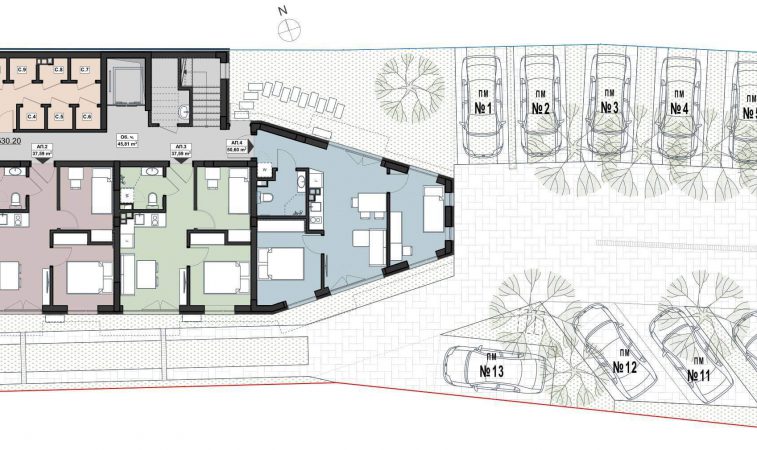
ПМ-1
1
Паркомясто
Открито
-
-
-
-
-
Резервиран
ПМ-2
1
Паркомясто
Открито
-
-
-
-
-
Резервиран
ПМ-3
1
Паркомясто
Открито
-
-
-
-
-
Резервиран
ПМ-4
1
Паркомясто
Открито
-
-
-
-
-
Резервиран
ПМ-5
1
Паркомясто
Открито
-
-
-
-
-
Свободен
ПМ-6
1
Паркомясто
Открито
-
-
-
-
-
Резервиран
ПМ-7
1
Паркомясто
Открито
-
-
-
-
-
Резервиран
ПМ-8
1
Паркомясто
Открито
-
-
-
-
-
Резервиран
ПМ-9
1
Паркомясто
Открито
-
-
-
-
-
Резервиран
ПМ-10
1
Паркомясто
Открито
-
-
-
-
-
Продаден
ПМ-11
1
Паркомясто
Открито
-
-
-
-
-
Свободен
ПМ-12
1
Паркомясто
Открито
-
-
-
-
-
Резервиран
ПМ-13
1
Паркомясто
Открито
-
-
-
-
-
Продаден

Етапи

Локация

НАЙ-ХУБАВАТА ЧАСТ НА ОРЛАНДОВЦИ

ОКОЛО СГРАДАТА ИМА ДОБРЕ ИЗГРАДЕНА ИНФРАСТРУКТУРА, А В БЛИЗОСТ ИМА МАГАЗИНИ, ГОЛЯМ ПАРК, ДЕТСКА ГРАДИНА И СПИРКИ - МЕСТОПОЛОЖЕНИЕТО ПРЕДЛАГА ВСИЧКИ ГРАДСКИ УДОБСТВА НА ПЕШЕХОДНО РАЗСТОЯНИЕ.

Новини

OXBROKERS

Нашият холдинг празнува 5 години!

През 2025 година Oximo ще отбележи своя 5-ти рожден ден и искаме да отпразнуваме този специален момент с нашите клиенти и партньори!  През тези пет години заедно постигнахме значителни успехи, реализирахме множество проекти и изградихме стабилни и доверени...

30 август 2024
OXBROKERS

Бижу до морето – Harmony By The Sea

Представяме ви един от последните инвестиционни проекти на холдинга Oximo в гр. Варна.  Намира се в м-т Траката, който последните години е много предпочитан район в града, предлагащ спокойствие и бърз достъп до центъра на града. Предвидени са...

03 април 2024
OXBROKERS

Dalia е почти изцяло разпродадена

2 месеца след стартирането, последният инвестиционен проект на холдинга Oximo в гр.София, е почти изцяло разпродаден! Останаха само още 5 свободни апартамента.  Строителството се движи по план и до 09.2024г. трябва сградата да получи АКТ 15. Вижте свободните...

02 март 2024
+359 89 999 1166
× oximo томбола