Oxbrokers - Купи директно от инвеститор +359 89 999 1166
Към етажа

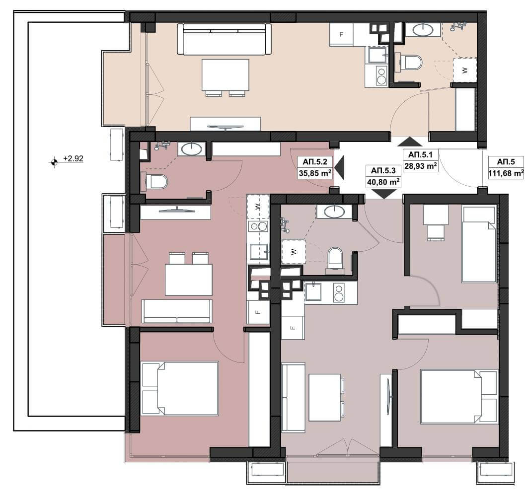
Жилищна сграда Dalia

Апартамент №А5

Етаж 2
Тип Многостаен
Чиста площ 111,68 m2
Общи части 19,32 m2
Обща площ 133,00 m2
Цена 175 000 €
Статус Свободен

Апартамент – 3 Дневни с кухненски бокс, три спални, 3 бани с тоалетна, коридор, 3 тераси, изба 2кв.м

Residance Building Dalia
Dalia Entrance А Floor 2 apartment – 5 - ▷ OXBROKERS.BG - ОКСБРОКЕРС

Апартамент №А5

Dalia

Изпратете запитване за А5

  • Това поле е за целите на валидирането и трябва да останат непроменени.

* С натискането на бутона се съгласявате личните ви данни да бъдат съхранявани и обработвани за целите на сайта.

Още имоти

За повече информация кликнете върху имота

Новини

OXBROKERS

Нашият холдинг празнува 5 години!

През 2025 година Oximo ще отбележи своя 5-ти рожден ден и искаме да отпразнуваме този специален момент с нашите клиенти и партньори!  През тези пет години заедно постигнахме значителни успехи, реализирахме множество проекти и изградихме стабилни и доверени...

30 август 2024
OXBROKERS

Бижу до морето – Harmony By The Sea

Представяме ви един от последните инвестиционни проекти на холдинга Oximo в гр. Варна.  Намира се в м-т Траката, който последните години е много предпочитан район в града, предлагащ спокойствие и бърз достъп до центъра на града. Предвидени са...

03 април 2024
OXBROKERS

Dalia е почти изцяло разпродадена

2 месеца след стартирането, последният инвестиционен проект на холдинга Oximo в гр.София, е почти изцяло разпродаден! Останаха само още 5 свободни апартамента.  Строителството се движи по план и до 09.2024г. трябва сградата да получи АКТ 15. Вижте свободните...

02 март 2024

Жилищна сграда Dalia

Апартамент №А5

Апартамент – 3 Дневни с кухненски бокс, три спални, 3 бани с тоалетна, коридор, 3 тераси, изба 2кв.м

Етаж 2
Тип Многостаен
Чиста площ 111,68 м2
Общи части 19,32 м2
Обща площ 133,00 м2
Цена 175 000 €
Status Available
Residance Building Dalia
CONTACTS: +359 89 999 1166 office@oxbrokers.webfactor.com ул. “Д-р Заменхов 1” , гр. Варна
OXBROKERS.COM Web Design & SEO by
+359 89 999 1166
× oximo томбола